Listing provided courtesy of Shauna Weisbecker of Coastal Community Builders. Last updated . Listing information © 2025 Sandicor.
Asking Price: $1,400,000
100 Ramona Avenue, Grover Beach CA 93433
Community: West End
This Residential property was built in 2026 and is priced at $1,400,000. Please see the additional details below.
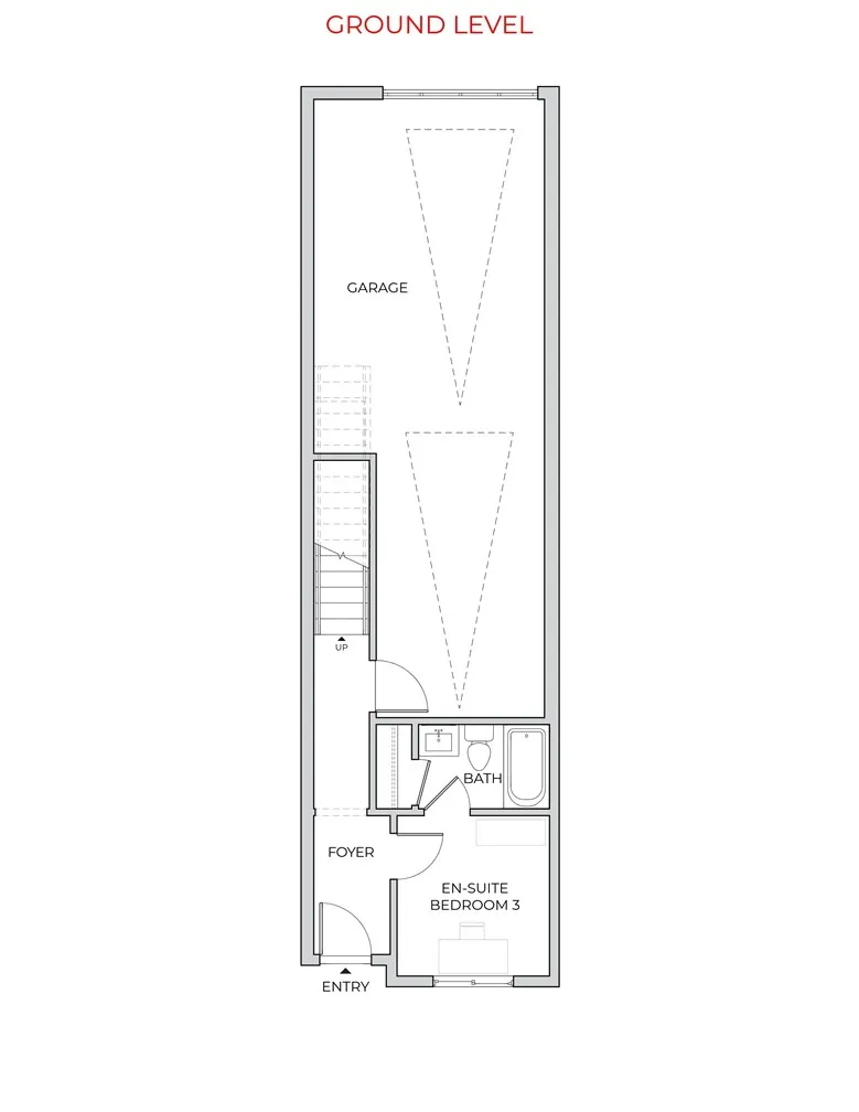
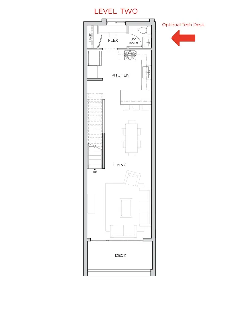
BRAND NEW CONSTRUCTION Welcome to Lot 13 at Trinity, a limited collection of 23 luxury ocean-view townhomes and condominiums with spacious rooftop decks, located in Grover Beach's West End, just minutes from the shoreline. This contemporary 3-bedroom, 3.5-bath townhome offers open-concept living with modern and thoughtful finishes throughout. The kitchen features quartz countertops, designer cabinetry, and stainless-steel appliances. Multiple decks provide indoor-outdoor living. The primary bedroom is a tranquil retreat with a large sliding door to let the ocean breeze in and features an en-suite, spa-inspired bath and a spacious closet. The rooftop deck offers ocean and sunset views, with options for an outdoor kitchen and hot tub. Additional highlights include a two-car tandem garage with EV pre-wiring. The home is located near local beaches, cafes, farmers markets, and local wineries. Enjoy all that the Central Coast has to offerall from your new coastal retreat.


























