Listing provided courtesy of Yuko Watanabe of Worldwide Realty. Last updated . Listing information © 2025 Sandicor.
Asking Price: $699,990
400 Orange Blossom, Irvine CA 92618
Community:
This Residential property was built in 1977 and is priced at $699,990. Please see the additional details below.
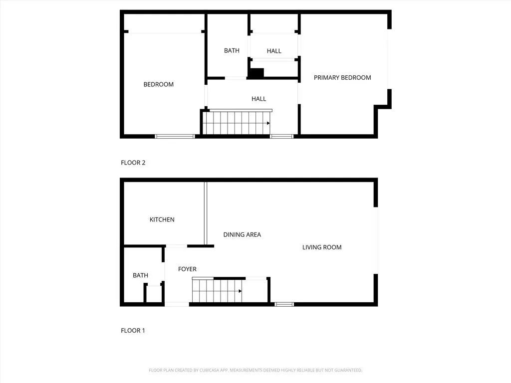
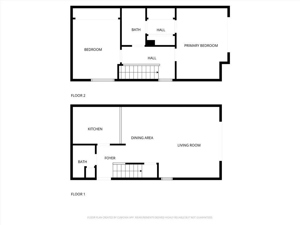
Beautiful End-Unit Townhome-Style Condo in the Heart of Irvine Welcome to this beautifully maintained end-unit, two-story townhome-style condo offering exceptional privacy with no neighboring unit on one side. This bright and inviting 2-bedroom, 1.5-bath home with 952 sq. ft. features a thoughtfully designed two-story layout that provides excellent separation between living and sleeping areas. The home is in true turnkey condition and showcases a fully upgraded kitchen and bathrooms with quartz countertops, brand-new dual-pane windows throughout, including a sliding patio door and balcony door, providing energy-efficient comfort year-round. Additional upgrades include fresh interior paint, elegant wood blinds, and a washer and dryer hookup conveniently located in the unit. Enjoy both a private patio and a private balcony, perfect for morning coffee or evening relaxation while overlooking the communitys peaceful water features. The end-unit location enhances natural light and privacy, making the home feel open and serene. The building exterior has been freshly painted, adding to the communitys well-maintained and attractive appearance. Located in the highly desirable Orangetree Condominium Association, residents enjoy resort-style amenities including two pools, two spas, a clubhouse, fitness center, playground (Tot Lot), tennis courts, basketball courts, and beautifully landscaped grounds with tranquil water features. HOA dues include water, trash, and exterior property coverage, offering both convenience and peace of mind. Ideally situated near Irvine Valley College, UC Irv



































