Listing provided courtesy of KEVIN ENRIQUEZ of COMPASS. Last updated . Listing information © 2025 Sandicor.
Asking Price: $549,000
3972 Boulder Drive, Jurupa Valley CA 92509
Community: Granite Ridge
This Residential property was built in 2018 and is priced at $549,000. Please see the additional details below.
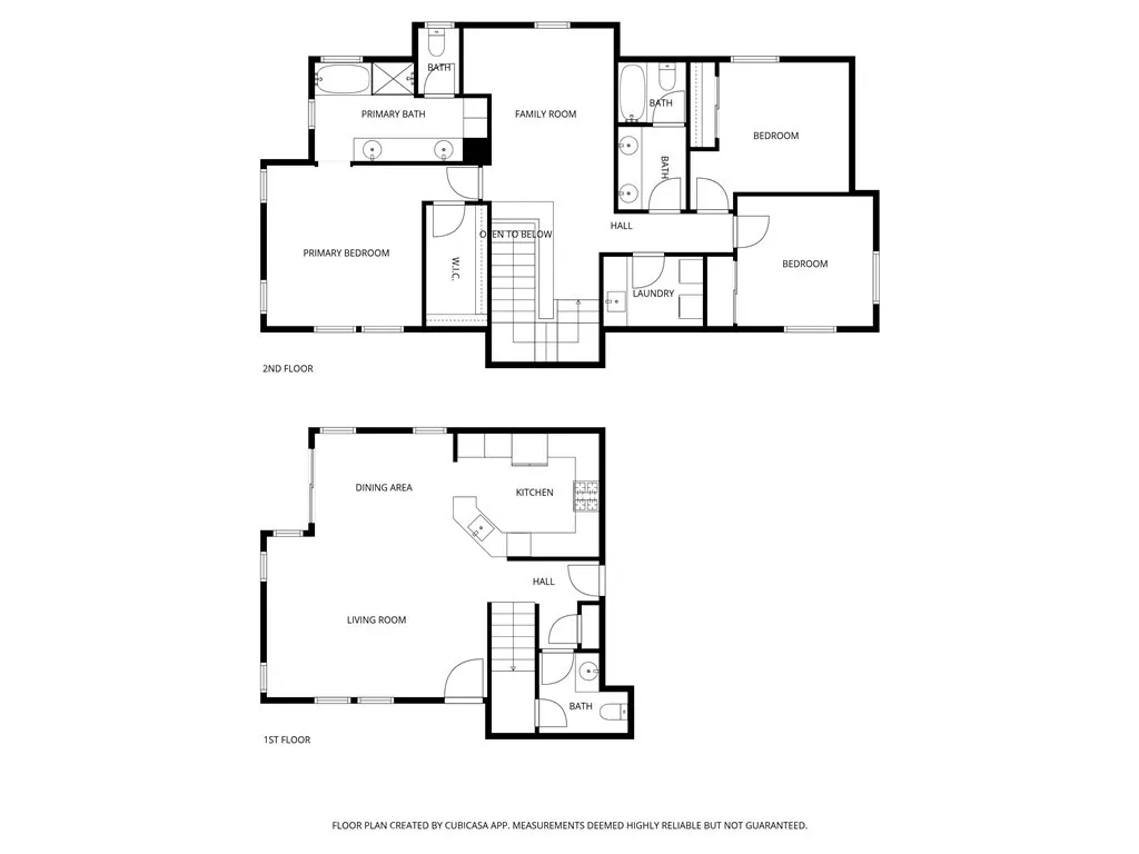
First time homebuyers, commuters, buyer's who are looking for a low-maintenance property...3972 Boulder Drive is a beautifully maintained home located in the Granite Ridge gated community in Jurupa Valley! Offering 1,830 sq. ft. of living space, this 3-bedroom, 2.5-bath home includes a spacious open loft that can easily be converted into a 4th bedroom. Built in 2018, this home has all the modern finishes, upgrades, and systems of new construction. The kitchen offers ample storage with an open concept floor plan that flows into the dining and living spaces. A convenient powder room downstairs provides easy access for guests while entertaining. Upstairs, the primary suite features dual sinks, water closet, separate shower and bathtub, plus a walk-in closet. The loft, just outside the primary bedroom, can be utilized as an upstairs family room, toy room, or office. A dedicated laundry room and utility sink are also located upstairs. Additional features include an attached two-car garage, tankless water heater, electrical panel capable of solar panel installation, and a low-maintenance backyard. Though classified as a Condo, this fully detached home lives like a single-family residence. Community amenities include playgrounds, greenbelt, gated entry, and HOA maintained landscaping. Conveniently located near the 60 freeway, the new Shops at Jurupa Valley, schools, and more!






































