Listing provided courtesy of BARRY LIEBERMAN of RE/MAX LAKESIDE. Last updated . Listing information © 2025 Sandicor.
Asking Price: $1,850,000
176 Mill Pond, Lake Arrowhead CA 92352
Community:
This Residential property was built in 2023 and is priced at $1,850,000. Please see the additional details below.
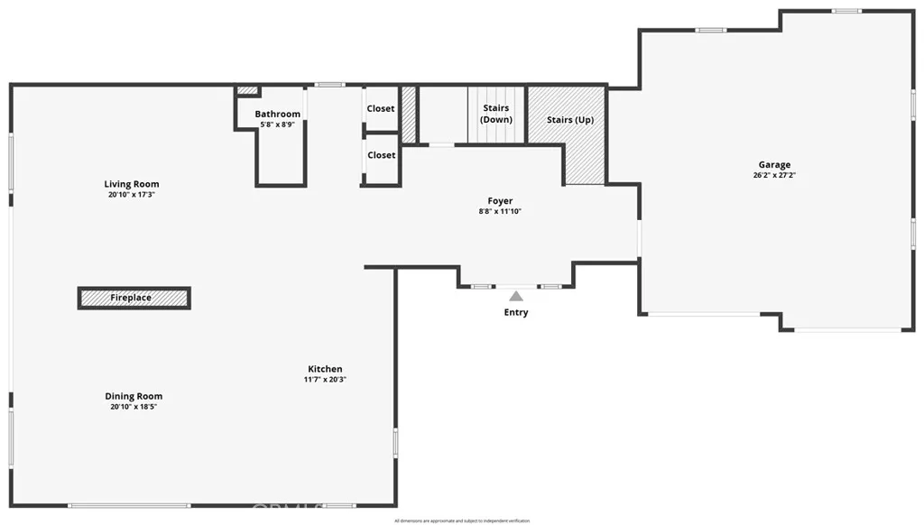
Experience luxurious mountain living in this stunning 3,063 sq' Modern=mountain home nestled in the new & exclusive Mill Pond gated community. Designed for comfort and style, this home offers a level entry, level driveway plus an attached garage for convenience. ~ Step out onto the expansive deck with a sunken spa tub and breathtaking lake viewsperfect for relaxing or entertaining. ~ The open floor plan features smoked oak flooring and all Thor appliances, including a 6-burner range with grill and wine fridge. ~. Elegant quartz & quartzite counters and a hand-split granite stone wall adds a touch of mountain-art, while a custom designed & heating two-way fireplace creates a cozy ambiance between the living and dining areas. ~ Unwind in the master retreat with its private lake-view deck, luxurious bath with a Signature air tub, gravity-fed rain shower with steam option, and heated floors. ~ The entire home is fantastically finished to every detail imaginable; suc as : custom 8' doors finished with premium Emteck hardware, remote-controlled window coverings and Wi-Fi locks on doors and garage. ~ Modern smart home technology enhances your lifestyle with Josh-AI home automation system that will control entire home features via single app or voice control, Sonos sound throughout (independent zones to each room), Ubiquiti security with cameras, Lutron lighting and central A/C for year-round comfort. ~ Enjoy direct access to private forest-belt area for roaming and relaxing in nature. This incredible property is served by maintained roads, underground utilities and high-speed inte


























































