Listing provided courtesy of Zach Deaso of Real Brokerage Technologies, I. Last updated . Listing information © 2025 Sandicor.
Asking Price: $1,285,000
5732 Hillcrest Drive, Los Angeles CA 90043
Community:
This Residential property was built in 1922 and is priced at $1,285,000. Please see the additional details below.
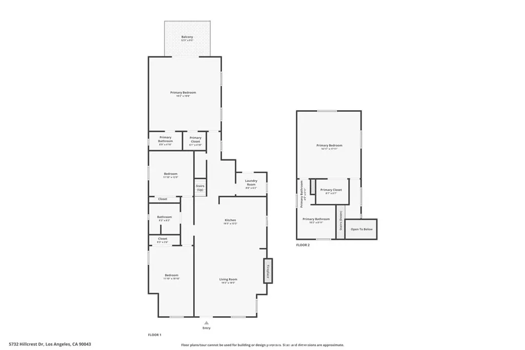
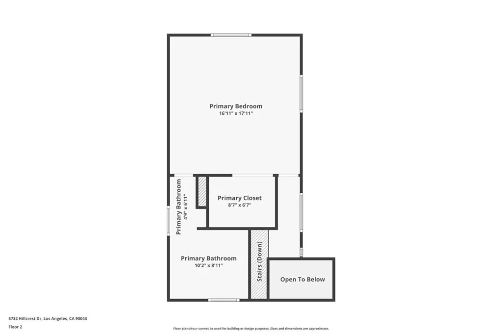
This spacious 4-bedroom, 3-bath residence offers 2,574 square feet of turnkey living and stands out as the largest move-in-ready home under $1.3M in Park Hills Heights, delivering exceptional value at under $500 per square foot. Thoughtfully designed with two primary suites, the layout is ideal for multigenerational living or work-from-home flexibility. The ADU-ready lot features a long driveway and detached garage, creating excellent potential for future expansion or additional income. Enjoy easy northsouth commuter access without the premium pricing of nearby View Park, making this the best value in the area and the most affordable turnkey option currently available in this sought-after neighborhood.











































































