Listing provided courtesy of Karen Domnitz of Century 21 Affiliated. Last updated . Listing information © 2025 Sandicor.
Asking Price: $1,300,000
22544 Tombill Road, Ramona CA 92065
Community:
This Residential property was built in 1999 and is priced at $1,300,000. Please see the additional details below.
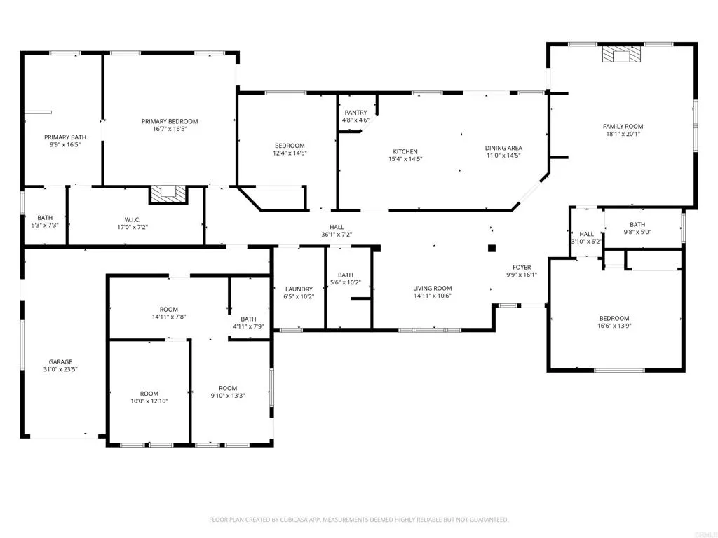
Beautifully updated 4.3-acre horse property that blends country living with modern comfort! From top to bottom, this property has been thoughtfully upgraded since 2020inside and out. Step into a fresh, stylish interior with new flooring, paint, baseboards, window coverings, lighting, and fixtures throughout. The kitchen shines with updated cabinets, countertops, appliances, and an island light fixture, while the bathrooms have been tastefully remodeled with new tile, vanities, and glass shower doors. Enjoy peace of mind with newer systems including a furnace, ductwork, AC fan, whole-house fan, water softener/filtration system, and two Tesla Powerwalls for energy efficiency. Outside, the property is just as impressivecomplete with a brand-new well (2025), fencing, turf areas, fire pit, and patio cover with ceiling fan. Relax in the cowboy pool, practice on the turf putting green, or unwind under the stars. Horse enthusiasts will love the corral paneling, barn, and plenty of room to ride. Theres also a charming ADU with mini-split AC, chicken coop, and storage sheds. All the hard work has been donejust move in and enjoy the country lifestyle youve been dreaming of!














































































