Listing provided courtesy of Mirjana Lucich of Estate Properties. Last updated . Listing information © 2025 Sandicor.
Asking Price: $848,000
11708 Parliament Drive, Rancho Cucamonga CA 91730
Community:
This Residential property was built in 1999 and is priced at $848,000. Please see the additional details below.
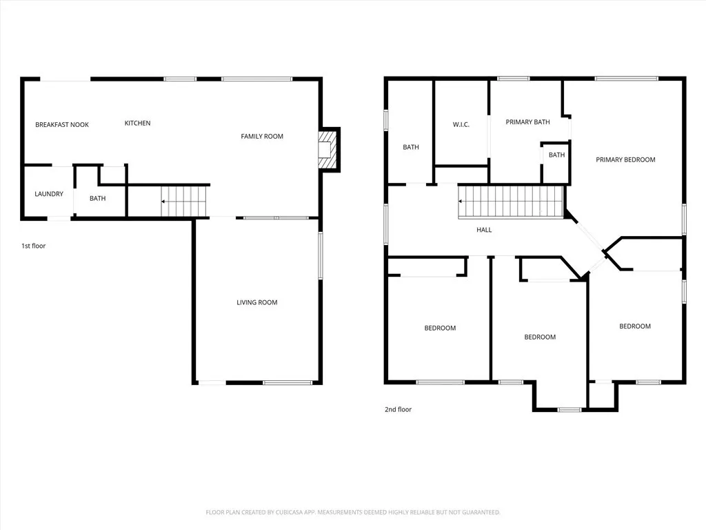
Nestled in the highly sought-after Village of Independence, this beautiful 4-bedroom, 2.5-bathroom home offers an exceptional lifestyle in one of Rancho Cucamongas premier gated communities. The residence provides approximately 2,255 square feet of living space with a seamless open floor plan that connects inviting living areas to an updated kitchen featuring modern finishes and ample storage. Hard surface flooring runs throughout the home for added elegance and ease of maintenance, leading to spacious bedrooms and the convenience of an indoor laundry room. Situated on an approximately 4,400 square foot lot, the property is designed to offer comfortable outdoor living with space for relaxing and casual entertaining, all with low-maintenance landscaping. The backyard serves as a private outdoor retreat, featuring a variety of fruit trees, including orange, lemon, tangerine, pomegranate, and fig. Residents enjoy the benefits of a gated community setting with nearby schools, parks, dining, and shopping options, including Victoria Gardens, as well as convenient access to the 210 and 15 freeways for commuting and travel.
















































