Listing provided courtesy of Neil Chhabria of Chhabria Real Estate Company. Last updated . Listing information © 2025 Sandicor.
Asking Price: $4,799,000
814 Esplanade, Redondo Beach CA 90277
Community:
This Residential property was built in 2003 and is priced at $4,799,000. Please see the additional details below.
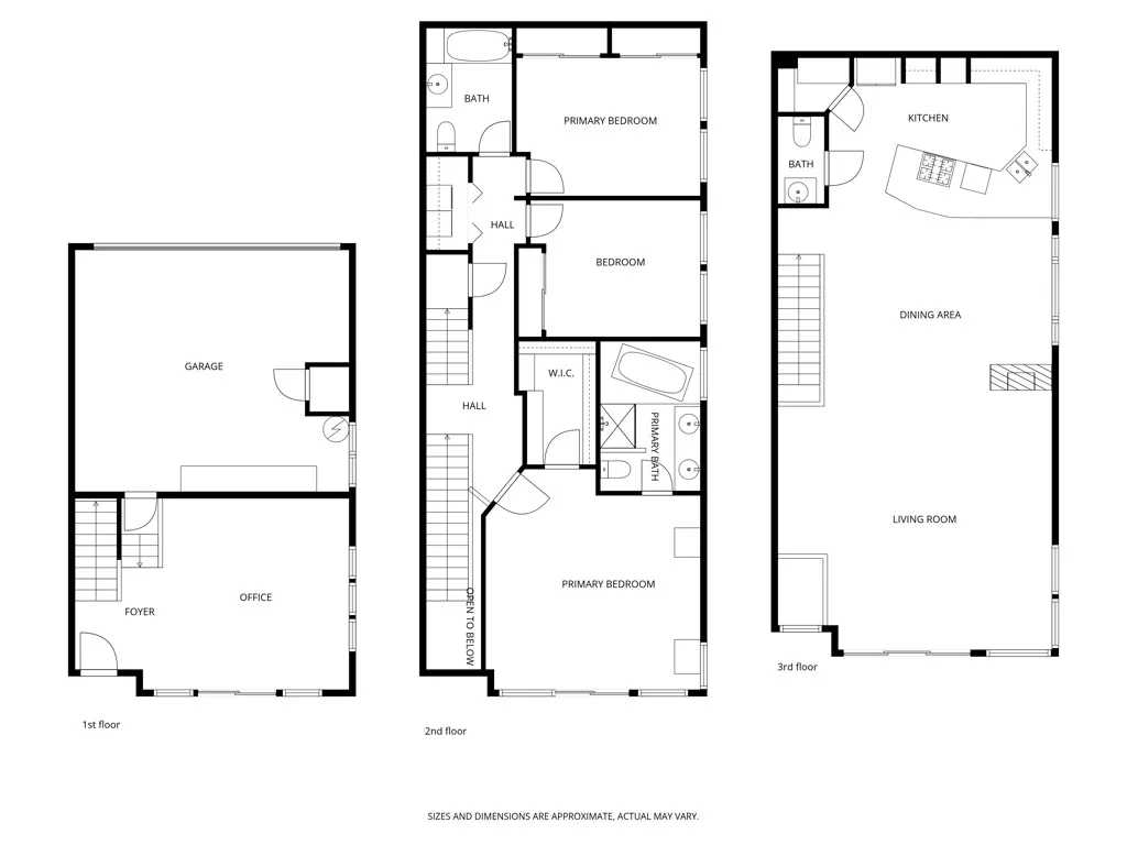
Three levels of direct ocean-view living define this rare South Redondo Beach residenceeach floor a private vantage point overlooking the Pacific from Palos Verdes to Malibu. Set along the quieter stretch of The Esplanade, just steps from the Knob Hill beach stairs and minutes from Riviera Village, this three-bedroom, two-and-a-half-bath luxury oceanfront residence home offers front-row coastal living with rare added privacy. Built in the early 2000s as one of only three homes in a boutique development, this newer-construction property blends timeless design with modern livability. Tall ceilings (10' on the third floor and 9' on the first and second floors), genuine walnut and travertine floors,natural light, and walls of glass connect every interior space to the horizon. The open-concept main level flows effortlessly between living, dining, and kitchen areas, all leading to a full-width ocean-view deck perfect for morning coffee or sunset gatherings. The chef's kitchen combines form and function with stone counters, custom cabinetry, and premium appliances. Upstairs, the primary suite enjoys its own ocean-view balcony, walk-in closet, and spa-inspired bath with dual vanities, soaking tub, and separate shower. Two additional bedrooms, a full laundry room, and ample storage complete the upper levels. A reverse floor plan with entertaining and main living on the upper level adds to the security and privacy of this remarkable oceanfront find. On the entry level floor, a flexible beach room opens to an elevated patio and landscaped yard areaset above street level for enhanced p





















































