Listing provided courtesy of Joseph Borish of Realty Masters & Associates. Last updated . Listing information © 2025 Sandicor.
Asking Price: $760,000
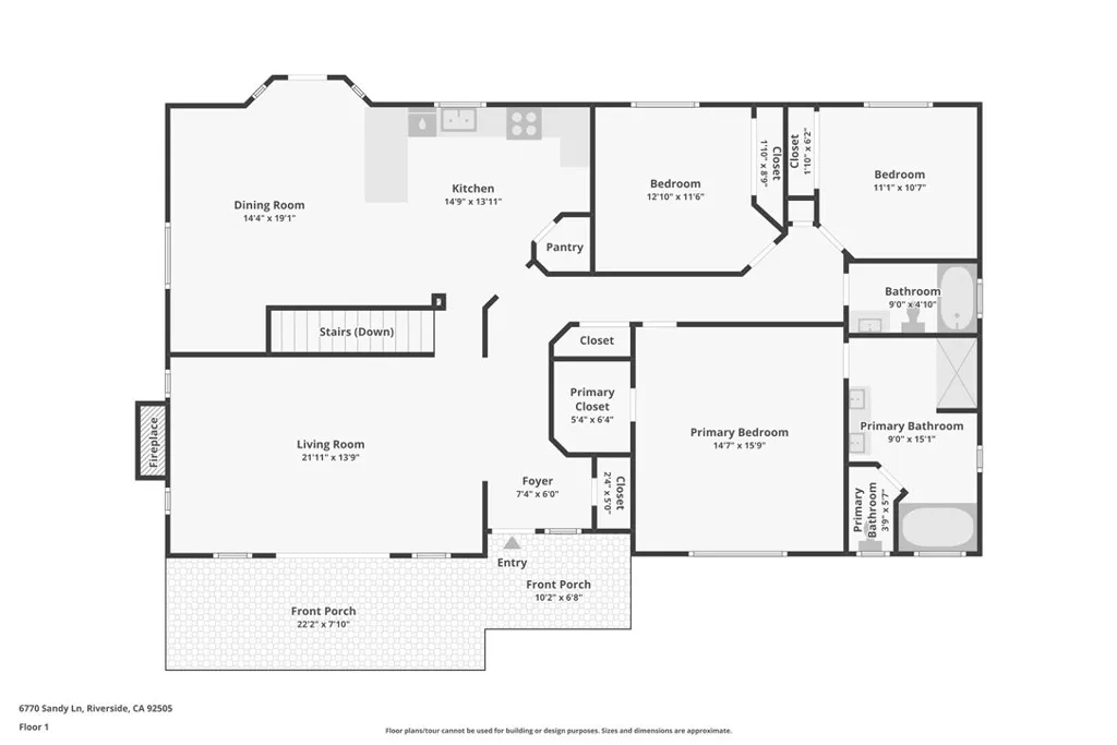
6770 Sandy Lane, Riverside CA 92505
Community: La Sierra Hills
This Residential property was built in 1989 and is priced at $760,000. Please see the additional details below.
Rare opportunity in La Sierra Hills, a highly sought-after horse-friendly community where homes seldom become available. This move-in ready home offers a bright, open floor plan with vaulted ceilings that enhance the sense of space and natural light, designed for both comfort and connection. The living room also features vaulted ceilings and a cozy fireplace, flowing effortlessly to a view deck with beautiful city lightsperfect for relaxing or entertaining. Set on a generous lot with room for equestrian use, the backyard features a raised area for a gazebo retreat, ideal for unwinding at the end of the day or enjoying peaceful mornings watching the sunrise. The primary suite provides a private escape with a spa-like bathroom, complete with a soaking tub and separate shower. Thoughtfully updated throughout, including new flooring, fresh interior and exterior paint, remodeled kitchen and bathrooms, updated fixtures, doors, closet doors, a kitchen pantry, and new appliances. An attached garage with direct access adds everyday convenience, along with laundry hookups. Centrally located with easy access to Riverside, Norco, Ontario, and Rancho Cucamonga, plus nearby shopping, dining, schools, and freeway accessoffering the perfect balance of equestrian lifestyle and city convenience. **This home is NOT for rent. If you see it listed for rent, it is a scam.**




















































